GEWERBEBAUTEN: PRODUKTIONS- UND LAGERHALLE HORNBACH

Produktions- und Lagerhalle Hornbach

Bauherr

Standort

Jahr

Nutzung 

Baukosten

Leistungsphasen

BGF

Hornbach Forst GmbH

Berlin-Marzahn

2022-2023

Produktions- und Lagergebäude

2.5 Mio €

4-8

2.850 m²

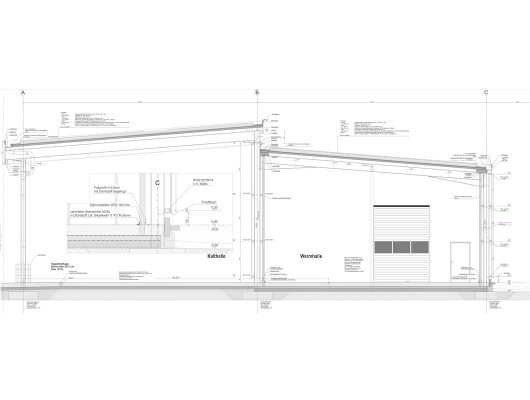
Mit der Planung und Ausführung einer Hornbach Produktions­ und Lagerhalle wurde ein Gebäude in Stahlskelettbauweise mit Kalt­ und Warmhalle errichtet. In der Warmhalle werden Baumstämme aus den umliegenden Wäldern zu Brennholzscheiten verarbeitet. Die Kalthalle dient zur Lagerung und Trocknung des Holzes. Die gesamte Halle erhielt ein extensives Gründach.