GEWERBEBAUTEN: EINKAUFZENTRUM KÖNIGSTEINER STRASSE

Einkaufszentrum Königsteinerstrasse

Bauherr

Standort

Jahr

Nutzung 

Baukosten

Leistungsphasen

BGF

Entwurf 

Achim Friese Treuhandgesellschaft

Frankfurt am Main

2009

Parkhaus und Gewerbe

ca. 11 Mio €

5-6

9.100 m²

B&V Architekten, Frankfurt am Main

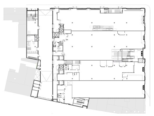
Ausführungsplanung eines Geschäftshauses, bestehend aus zwei Vollgeschossen und einem Staffelgeschoss, aufbauend auf dem Bestandskellergeschoss. Auf einer Fläche von rund 11.000 qm entstanden Geschäfte wie C&A, REWE, Postbank und ein DMDrogeriemarkt. Auch besonder an diesem Objekt ist die Natursteinfassade aus Muschelkalk mit der großflächigen Pfosten­Riegel­Fassade.