MEHRFAMILIENHÄUSER UND WOHNQUARTIERE: NEUBAU WOHNGEBÄUDE MIT GEWERBE

Neubau Wohngebäude mit Gewerbe

Bauherr

Standort

Jahr

Nutzung

Baukosten  

Leistungsphase

BGF

Entwurf 

Gebäude- und Wohnungsbaugesellschaft Wernigerode mbH

 Wernigerode

 2023-2024

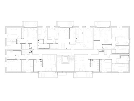
12 Wohneinheiten + 3 Gewerbeeinheiten

ca. 3,7 Mio. €

5

1.820 m²

Hartung+Ludwig und SNP Architekten

Erstellung der Ausführungsplanung für ein Haus der aus drei Häusern bestehenden Wohnanlage auf dem ehemaligen Schulgelände. Auf dem zentrumsnahen Grundstück werden zwölf Wohneinheiten realisiert, darunter großzügige 2 bis 5-Raum-Wohnungen – eine davon als Maisonette gestaltet. Das Erdgeschoss wurde für Gewerbetreibende mit drei Gewerbeflächen von etwa 425 Quadratmetern geplant.

Fotoverweis: Industriebau Wernigerode