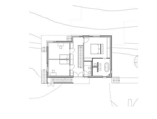
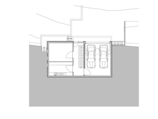
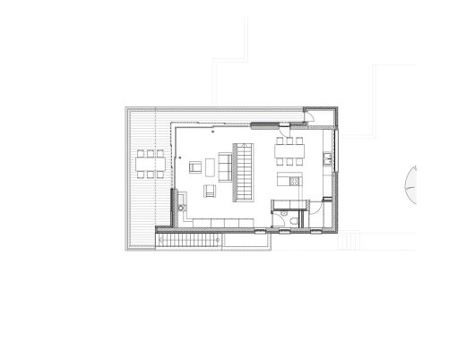
Neubau eines privaten Wohnhauses am Hang mit gehobener Ausstattung. Das Gebäude wurde im KFW-70-Standard realisiert. Vom offenen Wohn- und Essbereich, der mittels Schiebefensteranlage auf die Terrasse erweitert werden kann, ist eine großzügige Aussicht auf die Weinberge von Freyburg gegeben. Das Gebäude wurde in der Cube 01/21 ausführlich vorgestellt.