EINFAMILIENHÄUSER: HAUS FREYBURG II

Haus Freyburg II

Bauherr

Standort

Jahr

Nutzung 

Baukosten

Leistungsphasen

BGF

Privat

Freyburg an der Unstrut

2015

Wohnen

o.A.

1-5

480 m²

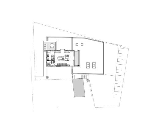
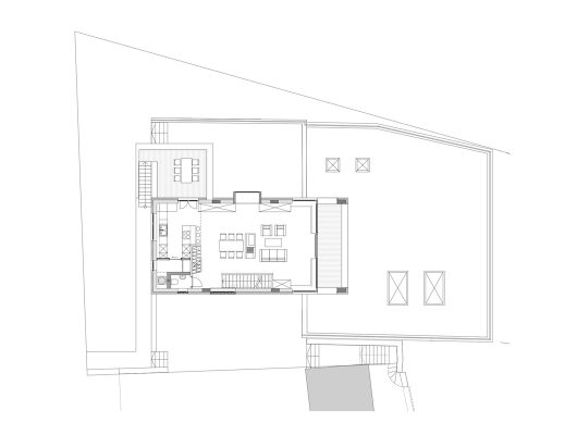
Neubau eines privaten Wohnhauses in Hanglage mit gehobener Ausstattung. Der offen gestaltete Wohn- und Essbereich mit einem Kamin als Raumtrennung erstreckt sich bis unter das Dach. Im Untergeschoss ist eine Garage mit Werkstatt angeschlossen. Das intensiv begrünte Dach der Garage wird als Garten genutzt.

Fotoverweis: www.michaelmoserimages.de