EINFAMILIENHÄUSER: HAUS W

Haus W

Bauherr

Standort

Jahr

Nutzung 

Baukosten

Leistungsphasen

BGF

Privat

Grimma, OT Schkortitz

2020-2024

Wohnen

o.A.

1-8

260 m²

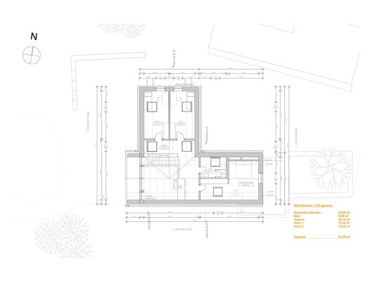
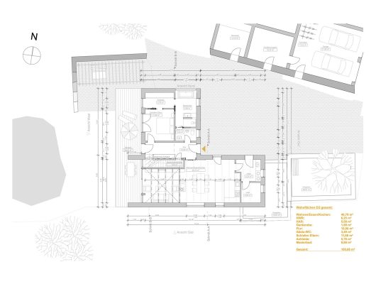
Neubau eines privaten Wohnhauses im Dorfkern von Schkortitz. Auf den Grundmauern des ehemaligen Auszugshauses wurde der Neubau errichtet. Sein äußeres Erscheinungsbild ist geprägt durch die umliegende Bebauung. Der Wohnraum ist über einen Luftraum mit dem Obergeschoss verbunden, optisch durch die historische Balkenlage des ehemaligen Auszugshauses getrennt.