SANIERUNG: SANIERUNG UND UMNUTZUNG HAUS L FÜR ADMINISTRATION

Sanierung und Umnutzung Haus L für Administration

Bauherr

Standort

Jahr

Nutzung 

Baukosten

Leistungsphasen

BGF

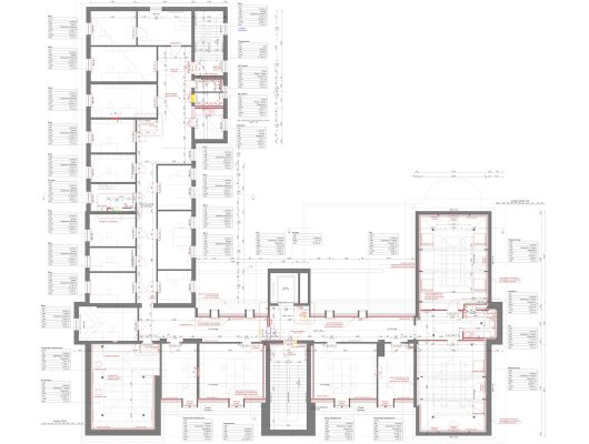
Universitätsklinikum Leipzig

Leipzig, Johannisallee

2020-2022

Informationsmanagement

2.78 Mio. € netto KG 300+400

1-8

3.683 m²

Sanierung und Umbau des ehemaligen Klinikgebäudes und Umnutzung zu Büros für administrative Zwecke. Das gesamte Gebäude wurde in Absprache mit dem Amt für Denkmalschutz von Grund auf saniert und erhielt neue Boden- und Wandbeläge. Das Dachgeschoss wurde für Besprechungsräume ausgebaut und erhielt neue Dachfenster. Die Türen wurden aufgearbeitete und durch neue Brandschutztüren mit Glaselementen ergänzt.