SANIERUNG: HAUS WEINBERGSTRASSE

Haus Weinbergstrasse

Bauherr

Standort

Jahr

Nutzung 

Baukosten

Leistungsphasen

BGF

Privat

Leipzig

2015-2017

Wohnen

465.000 €

1-8

440 m²

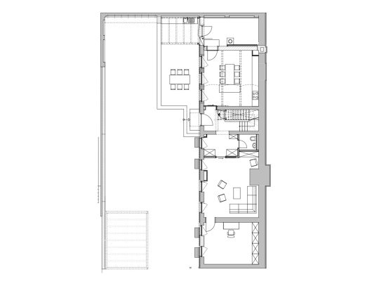
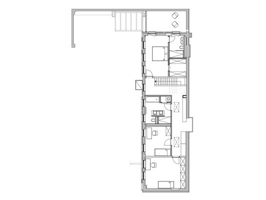
Umbau und Sanierung einer denkmalgeschützten Remise zum privaten Wohnhaus. Das Gebäude mit historischen Kappendecken wurde um eine Terrasse ergänzt. Durch den Abbruch von Nebengebäuden und die Neugestaltung des Innenhofes erhielt das Wohnhaus einen eigenen Gartenbereich. Die energetische Sanierung der Gebäudehülle erfolgte über Innendämmung, um das historische Außenbild nicht zu beeinträchtigen.