SANIERUNG: BLUTSPENDEZENTRUM

Blutspendezentrum

Bauherr

Standort

Jahr

Nutzung 

Baukosten

Leistungsphasen

BGF

Haema AG

Brandenburg an der Havel

2023

Blutspendezentrum

ca. 1.5 Mio €

1-5

1.800 m²

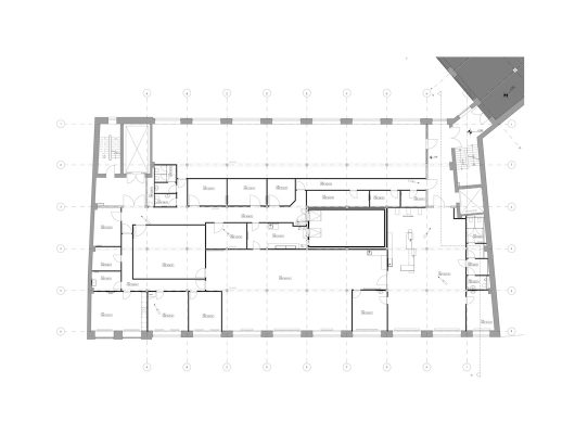
Planung der Umnutzung von einer ehemaligen Druckerei zu einem Blutspendezentrum. In unserem Büro erfolgte die Koordination der Planung als Generalplaner bis zur Ausführungsplanung in Zusammenarbeit mit erfahrenen Fachingenieuren für Haustechnik, Elektro- und Medizintechnik. Da der Gebäudekomplex unter Denkmalschutz steht, mussten die Belange in die Planung integriert werden.